鋸南不動産 kyonan real estate

  • home
  • property
  • company
    • overview
    • staff
  • news
  • flow
  • voice
  • line
  • contact

鋸南不動産 kyonan real estate

  • home
  • property
  • company
    • overview
    • staff
  • news
  • flow
  • voice
  • line
  • contact
  • home
  • property
  • company
    • overview
    • staff
  • news
  • flow
  • voice
  • line
  • contact

property list 物件一覧

  • HOME>
  • 物件情報>
  • 鋸南町保田露天風呂付ログハウス

安房郡鋸南町保田 鋸南町保田露天風呂付ログハウス

価格 1,880万 円 1,580万円
  • 戸建・マンション
  • 田舎暮らし
露天風呂付のログハウスでリゾート感あり
DIY好きの方は腕の見せどころ!!
山並み街並み望む3階からの景色良好
道の駅「保田小学校」や鋸南保田IC近く

動画

物件写真

各画像をクリックで拡大表示されます。画像は右にスクロールできます。

  • お庭も広いログハウス、3階部分に露天風呂あります

    お庭も広いログハウス、3階部分に露天風呂あります

  • 区画図

    区画図

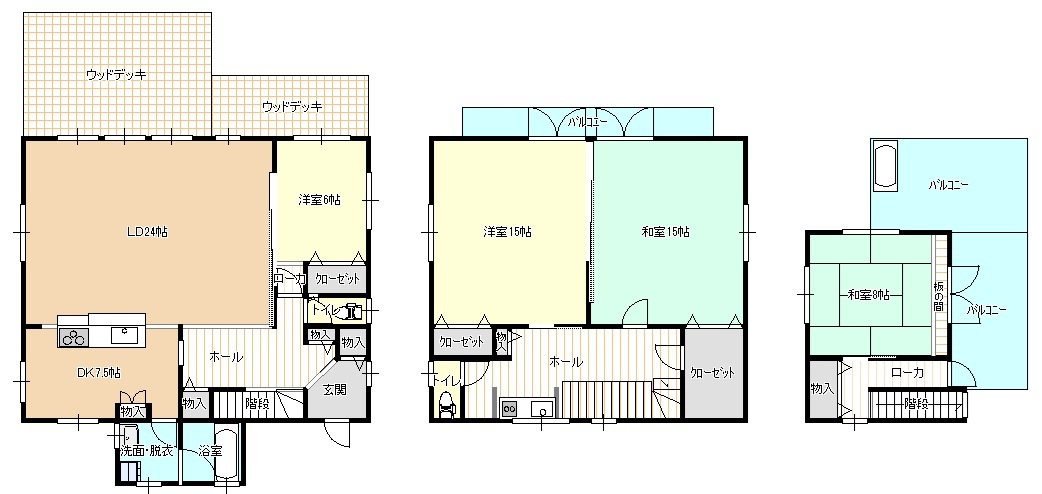
  • 間取図

    間取図

  • ウッドデッキの補修も楽しみのひとつ、木の温もりある住まい満喫

    ウッドデッキの補修も楽しみのひとつ、木の温もりある住まい満喫

  • 南側にも北側にも両面道路に接道している為、圧迫感がありません

    南側にも北側にも両面道路に接道している為、圧迫感がありません

  • 1階 広いLDK シンクも大型がついており 温かみのある照明付き

    1階 広いLDK シンクも大型がついており 温かみのある照明付き

  • リビングが一段高くなっており、空間にメリハリと開放感を演出

    リビングが一段高くなっており、空間にメリハリと開放感を演出

  • 1階洋室部分 間仕切りをすることで個室として利用可能

    1階洋室部分 間仕切りをすることで個室として利用可能

  • キッチンも広々設計、リビング全体が見渡せるため子育て世代にも最適

    キッチンも広々設計、リビング全体が見渡せるため子育て世代にも最適

  • 薪ストーブもお手入れしだいでよみがえります

    薪ストーブもお手入れしだいでよみがえります

  • 小物収納もありウォシュレット付のおトイレです

    小物収納もありウォシュレット付のおトイレです

  • 洗面脱衣所 壁面部分に収納スペースもあります

    洗面脱衣所 壁面部分に収納スペースもあります

  • 木のぬくもりに包まれて ゆったりとバスタイムをお楽しみ下さい

    木のぬくもりに包まれて ゆったりとバスタイムをお楽しみ下さい

  • 2階キッチン ゲスト用としても、セカンドキッチンとしても利用可能

    2階キッチン ゲスト用としても、セカンドキッチンとしても利用可能

  • 2階洋室 オープンにもできますし 引き戸を閉めれば個室としても使えます

    2階洋室 オープンにもできますし 引き戸を閉めれば個室としても使えます

  • 2階和室 個室として利用しても、広々しています。大人数での利用も最適

    2階和室 個室として利用しても、広々しています。大人数での利用も最適

  • 3階部分和室 陽当りも良く 四季折々の景色が望めます

    3階部分和室 陽当りも良く 四季折々の景色が望めます

  • 3階バルコニー部分も広々して、補修も楽しみのひとつ

    3階バルコニー部分も広々して、補修も楽しみのひとつ

  • 手を加える楽しみがある、露天風呂付ログハウス

    手を加える楽しみがある、露天風呂付ログハウス

  • 桜並木と露天風呂に癒される、DIY好きさんには特に必見です

    桜並木と露天風呂に癒される、DIY好きさんには特に必見です

物件詳細

物件種目
売中古戸建
物件所在地
千葉県安房郡鋸南町保田
価格
1,880万 円 1,580万円
坪単価
-
最寄駅
保田駅
交通
JR内房線「保田駅」より約1.1km
館山自動車道「鋸南保田I.C」より約800m
土地面積 (坪)

95.49坪 (公簿)

土地面積 (㎡)

315.67㎡(公簿)

土地権利所有権
所有権
地目
宅地
都市計画
区域外
用途地域
無指定
建ぺい率
70%
容積率
400%
建物 構造
木造スレートぶき2階建て
建物 間取り
4LDK+露天風呂付
建物 面積 (坪)
49.36
建物 面積 (㎡)
163.2
建物 築年月
平成19年7月築
駐車場
有
他の法令上の制限
-
引渡し条件
現況有姿
現況
空き家
引渡し日
相談
設備
東京電力・公営水道・プロパンガス・合併浄化槽
取引態様
仲介
接道状況
敷地の北側に約4.8m幅公道に12m接道
南側に約3m幅公道に13.25m接道
鋸南町保田に位置する平成19年築の露天風呂付ログハウス。(3階部分(7.32坪24.22㎡)に露天風呂あります。)
木の温もりを感じるログハウスならではの雰囲気に加え、露天風呂で四季折々の自然を楽しめる贅沢な住まいです。
室内は手入れ不要に近く、すぐに快適な生活を始められる状態が保たれています。建物外装やバルコニー、ウッドデッキの床等は補修が必要ですが、DIYが得意な方にとっては自分好みに仕上げる楽しみが広がる物件です。
さらに、2階にも一口IHとシンクが備え付けられており、簡単な調理や飲み物の準備に便利です。 セカンドキッチンとして活用できるため、ゲストを迎える際や多世帯利用にも適しています。
大型分譲地内にあり生活利便性も高く、前面には保田川が流れ、春には桜並木が美しく咲き誇ります。川沿いの桜は地域の名所(頼朝桜の里)として知られ、日常の暮らしの中で季節の移ろいを感じられる環境です。閑静で陽当たり良好な立地は、セカンドハウスや定住に最適で、自然と調和した穏やかな暮らしを叶えます。
周辺環境も充実しており、朝採れのお野菜が揃っている都市交流施設「道の駅 保田小学校」や保田川の「頼朝桜の里」へ約400m、日本一の水仙ロード入口へ約700m、鋸南国保病院へ約750m、保田海岸へ約950mと、自然・文化・医療が徒歩圏内に揃っています。さらに保田郵便局へ約1km、スーパーおどやへ約1.9kmと、日常の買い物や生活にも便利な立地です。
海・山・川の自然に囲まれながらも生活施設が近くに整い、リゾート感と実用性を兼ね備えた魅力的な物件。週末の別荘として、あるいは移住先として、自然を愛する方やDIYを楽しみたい方に是非おすすめです。

この物件について問い合わせる

CONTACT FORM

tel.0470-55-4375

営業時間 : 平日7:30~17:30、土日祝7:30~17:00
定休日 : 毎週水曜日、第1・3・5火曜日

周辺スポット

  • 保田・勝山海岸

    鋸南町には歴史ある保田海岸・勝山海岸があります。釣り・海水浴・マリンジェットなどのマリンスポーツが楽しめます。
  • 都市交流施設・道の駅保田小学校、附属ようちえん

    廃校になった小学校をリノベして造られた道の駅。テレビなどのメディアでも多数紹介されています。農産物の直売所や、教室そのままのカフェやレストランなど見どころ満載です。
  • 保田漁港

    漁協直営のお食事処、温泉や宿泊施設、マリーナまで揃った大きな漁港です。岸壁釣りも楽しめます。
  • 勝山漁港

    内房エリアでは一番釣り船の多い勝山漁港。季節に応じた多種多様な獲物で釣り人を飽きさせません。
  • 水仙ロード

    鋸南町は昔から水仙栽培が盛んでした。江月(えづき)水仙ロード、をくずれ水仙郷は水仙が咲き乱れ冬の観光スポットとして大変賑わいます。
  • 佐久間ダム

    水仙からはじまり頼朝桜、ソメイヨシノと花のリレーが楽しめる名所です。秋にはイノシシBBQ大会なども開催されます。

グルメ

  • 住吉飯店

    行列のできる鋸南町の中華の名店です。写真はえびそば。もやしそばと並んでデカ盛りで有名です。
  • なぎさ

    大広間で宴会もできる割烹なぎさ。コース料理も単品も、新鮮な魚介類はどれを食べても美味しいです。
  • まんえい食堂

    勝山漁港の釣り船萬栄丸が経営する食堂です。
    季節ごとにいろいろな釣りもののお魚が食べられます。カレーも人気です。
  • 囲い庵 花もじく

    築150年の古民家をリノベーションした和食店&バーです。店内には数々の骨董品があり非日常感を味わえます。「千葉豚卓上グリル御膳」がおすすめです。
  • 焼肉 慶尚苑

    保田駅の目の前にある焼肉の名店。鋸南のソウルフードです。絶対に美味しいので是非食べてみて下さい。
  • 干物「漁場屋いさばや」・「提灯屋」

    保田にある美味しい干物屋さんの二大巨頭です。干物はこのお店で間違い無しですよ。
back

contact

CONTACT FORM

物件のご相談やご質問などありましたら、こちらのフォームまたはお電話にてお気軽にお問い合わせください。

tel.0470-55-4375

営業時間 : 平日7:30~17:30、土日祝7:30~17:00
定休日 : 毎週水曜日、第1・3・5火曜日

鋸南不動産株式会社

〒299-1909 千葉県安房郡鋸南町大六116番地
tel. 0470-55-4375
営業時間 : 平日7:30分~17:30、土日祝7:30~17:00
定休日 : 毎週水曜日、第1・3・5火曜日

公認不動産コンサルティング
マスター在籍
  • home
  • property
  • company
    • overview
    • staff
  • news
  • flow
  • voice
  • line
  • contact
© 2024 鋸南不動産株式会社 Privacy Policy